首页 > 商用厨房工程

核心优势

20年商用厨房设备研发制造经验

  • 按需定制

    按需定制

    集研发、生产和销售为一体的中高档 西安商用厨房设计、厨房厨具专业制 造商,具有各种厨房设备、制冷制热 设备等生产能力。

  • 厨房勘察

    厨房勘察

    专业团队上门进行现场勘查,为客户 按需定制助于自己的专属厨房。

  • 免费设计

    免费设计

    上万家商用厨房设计经验,把更好的 更适合的,更省钱的方案提供给您。

  • 设备安装

    设备安装

    生产的厨具由公司专业的施工师傅根 据图纸进行安装,一比一还原。

  • 无忧售后

    无忧售后

    所有厨具均可享受终身维护服务,全 国10000+服务网点,较低的价钱享 受VIP服务。

配套方案展示

商用厨房设计规划|设备定制|工程施工

智慧厨房

智慧厨房

大型食堂

大型食堂

社会餐饮

社会餐饮

连锁餐饮

连锁餐饮

星级酒店

星级酒店

中央厨房

中央厨房

净菜加工

净菜加工

油烟净化

油烟净化

厨房新风

厨房新风

集中厨余

集中厨余

提供设备配套方案报价

20年知名商厨设备品牌,按需定制,全品类商厨设备生产供应

30-200m²食堂配套方案

根据环保要求和水电接驳,对后厨合理规划 根据环保要求和水电接驳,对后厨合理规划

现场勘测,急速合理规划搭配方案及报价 现场勘测,急速合理规划搭配方案及报价

200-500m²食堂配套方案

根据环保要求和水电接驳,对后厨合理规划 根据环保要求和水电接驳,对后厨合理规划

现场勘测,急速合理规划搭配方案及报价 现场勘测,急速合理规划搭配方案及报价

定制厨房

根据环保要求和水电接驳,对后厨合理规划 根据环保要求和水电接驳,对后厨合理规划

现场勘测,急速合理规划搭配方案及报价 现场勘测,急速合理规划搭配方案及报价

在线咨询方案

提供您的基本情况,设计您的专属方案

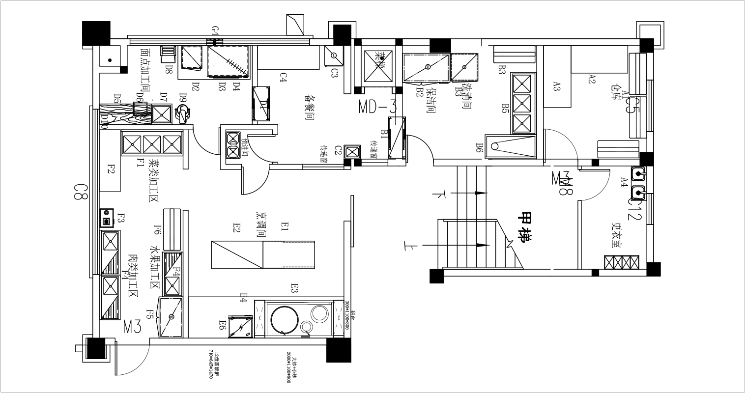
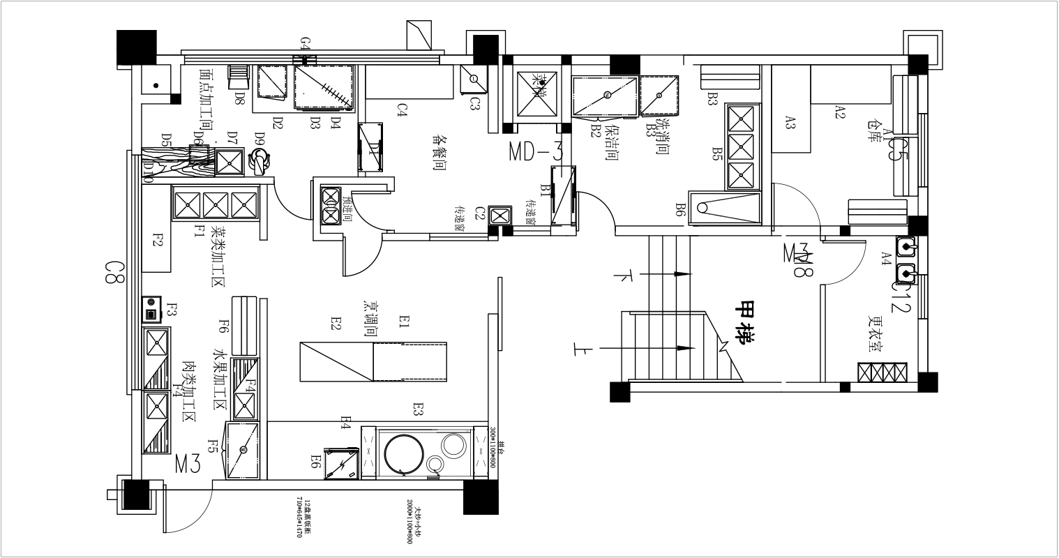
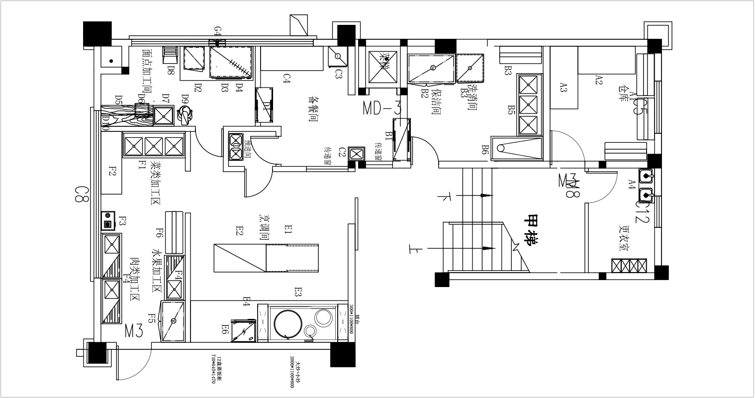
专注厨房工程20年专属工程师1天内为您快速设计工程平面图及报价清单

  • 厨房面积

    厨房面积

    根据您的厨房面积,为您的厨房设计功能性布局图。

  • 用餐人数

    用餐人数

    根据您的厨房的用餐人数进行针对性的设计。

  • 开餐次数

    开餐次数

    了解您厨房每天的开餐次数,为您的厨房设备设计提供参考。

  • 预算定位

    预算定位

    根据您食堂的标准设计不一样的方案:豪华型?标准型?大型的?小型的?

快三导师带计划赚钱工程流程

专注厨房工程20年专属工程师1天内为您快速设计工程平面图及报价清单